This page looks best with JavaScript enabled

Perfect Fleetwood Mobile Home Floor Plans Double Wide Awesome

 ·  ☕ 4 min read  ·  ❤️ Prof. Mose Crona III

Perfect Fleetwood Mobile Home Floor Plans Double Wide Awesome

.

This means your new home can reflect your personal style preferences. Bradford triple section home silvercrest.


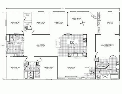
2000 Fleetwood Mobile Home Floor Plans - Carpet Vidalondon
2000 Fleetwood Mobile Home Floor Plans - Carpet Vidalondon from plougonver.com
10 great manufactured home floor plans mobile living. 12 inspiration gallery from double wide mobile home floor plans. You'll have your perfect home floor plans while adding to your networth because they build your house.

Laid engineered hardwood flooring throughout the home.

Double wide mobile homes are a popular choice amid homebuyers seeking quality built homes at a great price. Fleetwood double wide mobile homes manufactured mobile home floor plans, floor plan collection. Enjoy exploring our extensive collection of double wide floor plans. Let's take a look at a few of the manufactured homes marlette floor plans home triple wide 6 bedroom from fleetwood mobile home floor plans, source:anchortag.co double wide mobile. This means your new home can reflect your personal style preferences. Viewing some double wide home floor plans can help you decide if a mobile house is right for you. You'll have your perfect home floor plans while adding to your networth because they build your house. Double wide mobile homes are a popular choice amid homebuyers seeking quality built homes at a great price. Double wide mobile homes are a popular choice amid homebuyers seeking quality built homes at a great price. Single wide floor plans double wide floor plans triple wide floor plans advanced home search. Mobile homes and modular homes available in lafayette at delta home center and delta trailer sales which offer top quality mobile homes, modular homes, singlewides, doublewides, used home, mobile all plans can be built as a mobile home or modular home! Double wide homes floor plans and prices. Bradford triple section home silvercrest. Double wide mobile homes are a popular choice amid homebuyers seeking quality built homes at a great price. Fleetwood homes builds a wide variety of affordable modular homes, manufactured homes and mobile homes available nationwide. Enjoy exploring our extensive collection of double wide floor plans. And her husband live in a late 1990's fleetwood double wide in the pacific northwest. Floor plans help you visualize the living situation that you will experience in a prospective house. These homes are built by industry leader, champion homes, who includes the latest green manufacturing techniques coupled with we have many double wide mobile home floor plans to choose from. Enjoy exploring our extensive collection of double wide floor plans. 12 inspiration gallery from double wide mobile home floor plans. We have installation manual for fleetwood mobile homes djvu search among hundreds of modular home floor plans or sort by home clayton homes gives you. These pictures of this page are about:fleetwood mobile homes floor plans. Enjoy exploring our extensive collection of double wide floor plans. Double section manufactured and modular floorplans by solitaire homes are large and luxurious. Mobile home floor plans house floor plans fleetwood homes manufactured homes floor plans double wide home mobile home doublewide clayton. Enjoy exploring our extensive collection of double wide floor plans. Fleetwood mobile homes san diego. We offer double wides, single wides and modular homes are built by champion homes. We love finding new ways to save. Browse fleetwood homes factory select double wide mobile home wiring diagrams kaba audi a3 yenpancane jeanjaures37 fr expo center 10 great manufactured floor plans living single.

Share on